【企業展廳】展廳多媒體設計方案分析
數字展廳概述。
企業展廳是體現企業實力、內涵、文化的必備配置。通常有一定實力的企業會建自己的企業展廳。以前企業展廳配置很簡單,噴墨打印、KT板、X展架、玻璃展示柜都可以簡單展示。隨著技術的發展,傳統的靜態展示逐漸退出舞臺,近80%的企業展廳已經開始選擇多媒體展示技術;隨著多媒體展示技術的普及,出現了新的問題。展廳多媒體如何布局?如何設計?

宏觀背景分析和環境分析。
項目主題:了解和確定項目主題,圍繞主題進行規劃。確定展示主題,如生態環境保護、銀行金融、生物醫藥、歷史文化等,圍繞主題進行想象,確定可能展示的內容框架。
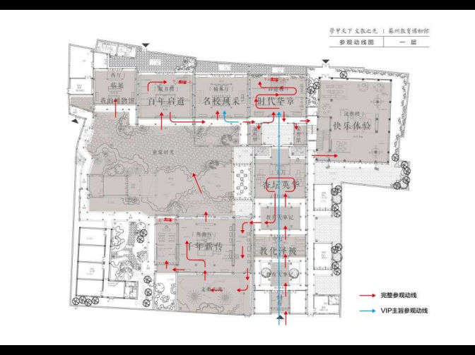
環境分析:分析項目環境和布局,分析項目風格和方向。確定展示環境,明確展示項目設計背景,如古建筑、現代現場、展館建筑結構、施工進度等,展示面積、樓高、布局圖等。
深入分析項目背景,形成展示脈絡。分析展示主題,形成展示背景脈絡。例如,海洋保護可以分解為生物、人類和海洋、海洋保護等。

內容結構:確定顯示的內容結構,圍繞主題深入分析顯示的主題。優先確定顯示的內容結構和框架,盡可能列出要顯示的內容。然后考慮保留和分配。
功能布局:確定展廳的功能布局,確保合理的展示內容完善,重點突出。合理分配展示的功能布局,繪制工具布局圖,用不同的顏色區分,可以很好的看全局,分配重點區域和次重點區域。
游覽動線:合理規劃游覽動線,做到不走回頭路,簡化游覽流程。對游覽動線進行合理規劃,形成一條脈絡,從古至今,從頭到尾。做到不走回頭路,并將重要節點安排在形成中部或中后部。

